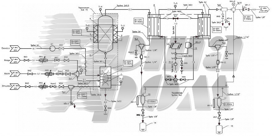
Рассмотрим подробно устройство реакторной установки на примере установки УИК-1, внедренной одной первых на предприятии «Газпром нефтехим Салават». Устройство других реакторных установок изложено в статье «Лабораторные каталитические установки для нефтехимии».
Реакторная установка представляет собой сложное оборудование, в состав которого входит несколько взаимодействующих между собой систем и агрегатов:
- Система автоматического формирования дозированных потоков газа
- Система автоматического формирования дозированных потоков жидкости
- Термостатированный смеситель
- Термостатированный реактор
- Холодильник
- Система автоматического поддержания давления
- Система автоматического контроля и защиты от превышения давления в установке
- Система автоматического формирования дозированных потоков газа (возможное количество каналов — до четырех). Управление системой и задание режимов работ осуществляется с помощью микропроцессора, а данные отображаются на мониторе ПК. Диапазоны давлений и рабочих расходов, а также перечень газов, нужно уточнять при оформлении заказа. Каждая газовая линия снабжена манометром и ручным шаровым краном. Параллельно одному электронному регулятору расхода установлен игольчатый вентиль, с помощью которого осуществляется наполнение реакторной установки рабочим газом и ее продувка.
- Система автоматического формирования дозированных потоков жидкости. В системе используются насосы высокого давления (возможное количество каналов — до двух). Диапазоны давлений и расходов, а также тип используемой жидкости, следует уточнять при оформлении заказа на приобретение установки.
- Термостатированный смеситель. Этот элемент реакторной установки отвечает за испарение поступивших в него жидкостей, формирование парогазовой смеси и подогрев газов. Управление смесителя происходит посредством микропроцессора, а на экране персонального компьютера отображаются рабочие режимы и их формирование. В качестве материала изготовления смесителя использована нержавеющая сталь 12×18Н10Т. В смесителе поддерживаются температуры от 50 до 600 °С и рабочее давление до 10 МПа.
- Термостатированный реактор. Обогрев реактора установки осуществляется в температурных диапазонах от 50 до 600 °С с двухсекционным нагревателем раздвижного типа. Каждая секция оснащена собственным температурным датчиком и нагревателем. Управление работой термостата осуществляется посредством микропроцессора, а рабочие режимы и их формирование отображаются на экране ПК. Реактор оснащен фильтрами-смесителями входного и выходного типа, которые изготовлены из кварцевого песка (фильтры-смесители помещены в отдельные корпуса). В качестве материала изготовления термостатированного реактора использована нержавеющая сталь 12×18Н10Т. Габариты и объем реактора следует уточнять при оформлении заказа на приобретение реакторной установки. На сегодняшний день, реактор выпускается в двух исполнениях:
- Без температурного датчика.
- С температурным датчиком в реакторе, расположение которого определяет оператор. Оператор также может по своему усмотрению менять расположение датчика, в том числе и в процессе проведения эксперимента (постоянное значение времени температурного датчика составляет 1–2 секунды).
Для обеспечения максимального удобства при герметизации, корпус реактора выполнен в виде шестигранника. Тип уплотнителя выбирается, в зависимости от пожеланий заказчика:
- Графлекс (давление до 10 МПа, температурные режимы — до 800°С).
- Паранит (давление до 10 МПа, температурные режимы — до 300°С).
- Металл по металлу (нержавеющая сталь, латунь, медь, алюминий).
-
Холодильник. Этот агрегат является неотъемлемой частью реакторной установки и представляет собой объем в виде спирали, который находится в рубашке с охлаждающей жидкостью (антифриз, вода и т. д.). Холодильник может работать при давлении до 10 МПа. Система охлаждения замкнутого типа содержит радиатор охлаждения с вентилятором и насос. Для достижения отрицательных температур в холодильнике, можно установить холодильный агрегат с теплообменником. Холодильники бывают одноступенчатыми и двухступенчатыми. Причем вторая ступень отвечает и за увеличение производительности агрегата (увеличение производительности достигается путем последовательного включения), и для отделения легкой кипящей фракции.
Между ступенями холодильника проходит соединительный трубопровод, в который встроен температурный датчик. Это позволяет настраивать нужную температуру холодильника, а расход проходящего через каждую охлаждающую рубашку хладагента регулируется игольчатым вентилем. Выход холодильника снабжен пробковым и игольчатым вентилями. Пробковый вентиль выполняет функцию соединительного звена между выходом холодильника и емкостью, куда поступают продукты реакции. Емкость оснащена специальным краном для слива жидкости и датчиком уровня (данные о датчике передаются в персональный компьютер). Игольчатый вентиль нужен для отбора проб на выходе и для их анализа при рабочем давлении 10 МПа. - Система автоматического поддержания давления. Системой поддерживается давление в диапазоне от 0 до 5 МПа. Постоянная сила поддерживается автоматически, за счет частичного сброса газовой фракции (как правило, пары компонентов смеси или инертный газ) в атмосферу или счетчик газа (не входит в комплектацию).
- Система автоматического контроля и защиты от превышения давления в установке. В устройство системы входят электронные преобразователи давления, которые установлены перед реактором и после него, а также предохранительные защитные клапаны механического типа. Клапаны настраиваются на 0,5 МПа выше, нежели рабочее давление в самой системе. Если срабатывают предохранительные клапаны, то парогазовые смеси сбрасываются в дренажную систему, выходное отверстие которой соединено, либо с емкостью для утилизации, либо с атмосферой. Все данные с электронных преобразователей передаются в ПК и идентифицируются на экране. Если заданные пороги превышены, то жидкости и газы автоматически прекращают попадать в установку, формирование их потоков осуществляется регуляторами расхода газа и насосами.
| Технические характеристики | Уплотнения реактора установки по требованию заказчика | ||
| графлекс | паранит | металл по металлу | |
|---|---|---|---|
| диапазон рабочих температур | до 800°С | до 300°С | алюминий |
| медь | |||
| диапазон давления, МПа | до 10 | до 10 | латунь |
| нержавеющая сталь | |||
Дополнительные возможности установки
При необходимости в систему можно установить газово-жидкостный сепаратор низкого давления с автоматическим поддержанием заданного температурного режима в термостатирующей рубашке. Отведение газовой составляющей осуществляется под атмосферным давлением через газовую линию, а конденсируемая жидкость попадает в колбу-приемник. Для исследования парогазовой смеси, сбрасываемых жидкостей и газов, систему можно доукомплектовать газовым хроматографом.
Особенности реакторной установки
Реакторная установка работает от электрической сети напряжением 220 В и частотой 50 Гц. Максимальная потребляемая мощность — 1,5 кВт. Создание и хранение отчетов с выбранными оператором данными осуществляется компьютерной программой. Таким образом, в памяти установки можно хранить необходимую информацию о фактических температурах, давлениях и расходах во время экспериментов. Детальный контроль процесса также осуществляется компьютерной программой, которая фиксирует и заносит в архив все отклонения от поддерживаемых значений. Величину параметров и допустимые отклонения задает оператор. Исполнение реакторной установки не подразумевает под собой защиту от взрыва. Гарантия на продукцию — 12 месяцев.
Как купить реакторную установку?
Заявки на приобретение установки принимаются по телефону 8 (800) 555-17-54 или по электронной почте m_chrom@mari-el.ru. За доставку и пусконаладочные работы оборудования отвечает Поставщик.


